Pôsobenie na trhu od roku 1999
01
Development a Výstavba
Realizujeme projekty od prvotnej štúdie až po kolaudáciu. Zameriavame sa na: výstavbu bytových a nebytových budov, inžiniersku činnosť a poradenstvo v stavebníctve, prípravu území pre priemyselné a energetické parky.
02
Technický inžiniering
Sme mozgom stavebných procesov. Zabezpečujeme projektovú dokumentáciu, povoľovacie procesy a technický dozor investora pre náročné infraštruktúrne diela.
03
Facility a Asset Management
Nehnuteľnosť je aktívum, len ak je spravovaná efektívne. Manažujeme komplexná správa administratívnych budov a prenájom komerčných priestorov pre B2B klientelu.
DOMOV SLOVAKIA
Stavebná údržba objektov v SynCo Group aj vybratým klientom
staviame pre Vás vyše 27 rokov
30
Budov v správe alebo ich manažmente
Spájame inováciu s tradíciou
Spoločnosť DOMOV Slovakia, a.s. je stabilným partnerom na slovenskom stavebnom trhu. Vyše 20 ročné skúsenosti z trhu v Angole, kde sa zameriava na výstavbu rodinných domov. V súčasnosti sa dokončuje mnohoročná príprava na podpis s angolskou vládou, projekt Aqua para todos, financovaný World Bank, pod dcérskou spoločnosťou Casa Slovakia, so sídlom v Luande.Sme exkluzívnym výrobcom a vlastníkom práv k montovanému stavebnému systému PANTER. Naša filozofia je postavená na trojuholníku: Rýchlosť výstavby – Nízka energetická náročnosť – Dostupná cena. Vďaka vlastnému know-how a projekčným kapacitám dokážeme realizovať komplexné obytné zóny, od prvotnej štúdie až po kolaudáciu, či už ide o rodinné domy, radovú zástavbu alebo bytové domy, priemyselné sklady a areály.

Za architektúrou stojí rovnako premyslená konštrukcia a to vďaka spolupráci s PMF Invest s.r.o. Obvodový plášť s 120 mm zateplením, hlbinné železobetónové pilóty s priemerom 600 mm zabezpečili stabilitu základov v náročných geologických podmienkach.

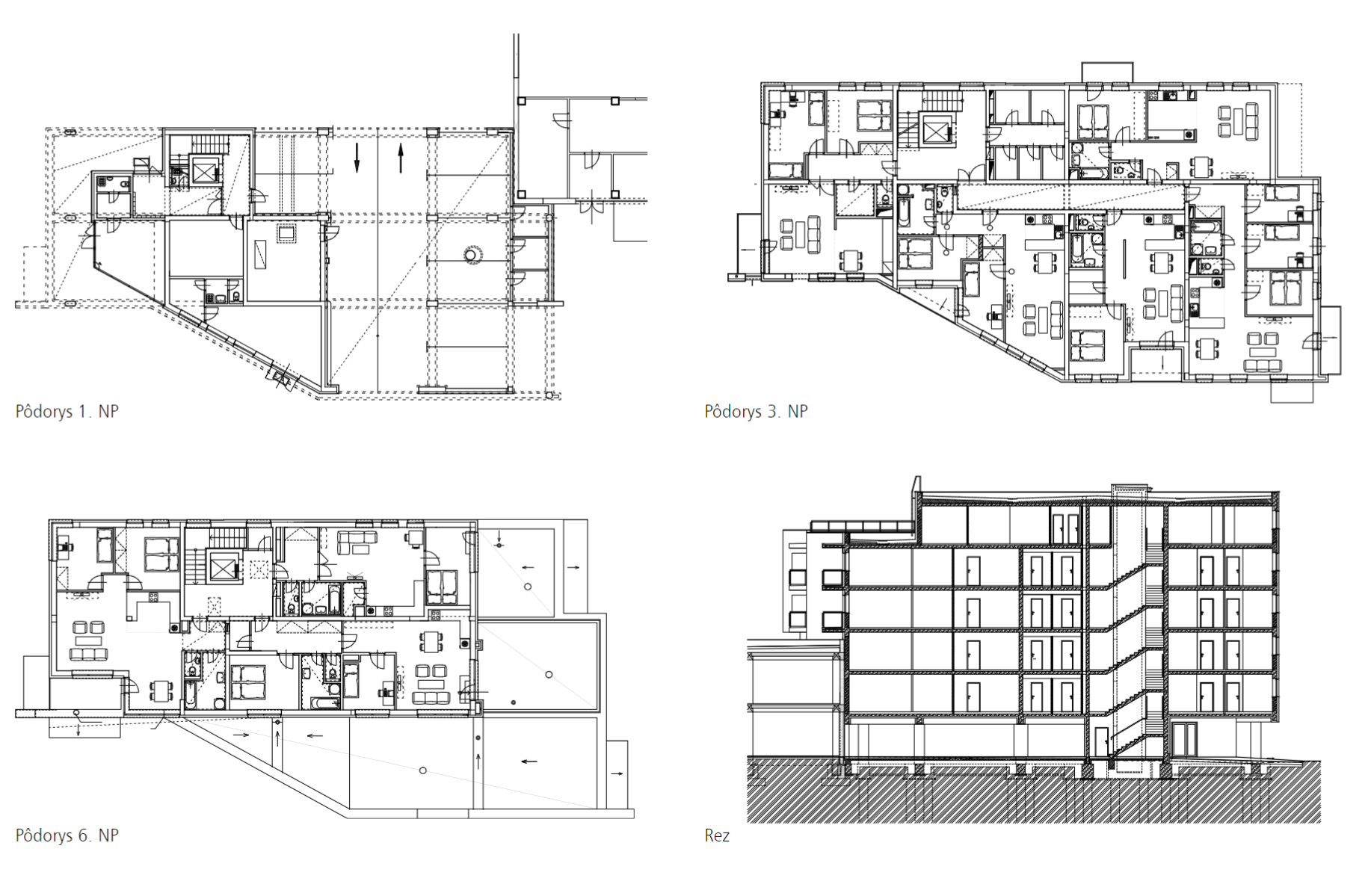
Bytový dom na Nitrianskej ulici v žilinskom sídlisku Vlčince. Novostavba vsadila na odvážnu dominantu: juhozápadnú fasádu s dokonalou ilúziou dreveného obkladu, vytvorenú minerálnou omietkou nanášanou silikónovou šablónou. Išlo o prvú fasádu tohto typu realizovanú v strednej a východnej Európe a dodnes tvorí nezameniteľnú vizuálnu identitu celého projektu.

Každý z 23 bytov — s rozlohou 55 až 80 m² — je vybavený balkónom, lodžiou alebo terasou, pivničnou kobkou a napojením na individuálne meranie tepla z novej výmenníkovej stanice priamo v budove. Celková úžitková plocha projektu vrátane 39 parkovacích státí dosahuje 2 455,64 m².
PANTER
Unikátny montovaný stavebný systém, ktorý eliminuje mokré procesy a výrazne skracuje čas výstavby. Vynikajúca fyzika: Nadštandardné tepelno-izolačné vlastnosti znižujú prevádzkové náklady budov. Flexibilita: Vhodný pre rodinné domy, bytovky, ale aj školy či administratívne budovy. Cena a Čas: Ideálne riešenie pre samosprávy, ktoré potrebujú riešiť bytovú otázku rýchlo a efektívne.
🌍 Medzinárodná expertíza: ANGOLA Pripravovaný projekt: Škola a ubytovňa (Detské centrum) Demonštrácia logistických a technických schopností spoločnosti DOMOV Slovakia, a.s. v náročných podmienkach afrického kontinentu. Realizácia kompletného zázemia pre vzdelávanie a ubytovanie.












